Espace commercial ou bureaux à louer
30 des-Forges, Trois-Rivières








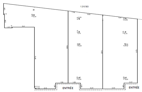
L’espace commercial offre une superficie totale de 3200 pieds carrés, avec possibilité de division selon vos besoins.
Profitez de l’achalandage très élevé de la rue des Forges ainsi que de la proximité avantageuse de deux stationnements au centre-ville. Le zonage permet plusieurs types d’entreprises dans les secteurs du commerce de détail, des bureaux et des services.
L’aménagement locatif et les inclusions seront établis selon les baux.
Chez Développement G.B, nous mettons à votre disposition des espaces commerciaux stratégiquement situés pour propulser votre entreprise.
© 2025 Développement G.B. Tous droits réservés.
💻 Conception par TheWebRevolutions.com
© 2024 Développement G.B. Tous droits réservés.
💻 Conception par TheWebRevolutions.com